Оборудование и инструмент
Для строительства бани своими руками из пеноблоков необходимо наличие оборудования и инструментов.

Штыковая лопата.

Резиновый молоток.

Ножовка.

Мастерок.
Инструменты:
- лопаты – штыковая, совковая и растворная;
- молоток-кирка;
- резиновый молоток или киянка;
- отвес;
- строительный уровень;
- правило;
- расшивка;
- кельма или мастерок;
- шнур причалка;
- шпатели;
- зубчатый шпатель;
- ножовка;
- рулетка;
- молоток.

Перфоратор.

Бетономешалка.
Оборудование:
- бетономешалка;
- ёмкость для разведения клея, цемента и воды;
- дрель с венчиком-насадкой;
- перфоратор;
- шуруповерт;
- штроборез;
- глубинный вибратор для удаления воздуха из раствора;
- степлер;
- лестница.
Проект нарисован, стройматериалы и инструмент подготовлены, переходим к постройке бани.
Какие материалы используются
Теперь предстоит выбрать материал для нашей будущей бани, памятуя о простоте и цене строительства. Баню сейчас можно строить из чего угодно.
Каркасная конструкция

Конечно, можно построить дешёвейшую баню-сэндвич из каркаса, утеплителя и прочих полуфабрикатов. Но такая баня, внешне вполне красивая, окажется совсем недолговечной, так как полностью произолировать её невозможно: внутри будет скапливаться конденсат, что приведёт к быстрому гниению конструкции.
Парная каркасной бани, видны этапы утепления и гидроизоляции
Дерево: брус и бревно

Наиболее традиционный материал — дерево. Вариантов у нас два: ставить баню из бруса или бревна. Это красиво, целесообразно, тепло, но не очень долговечно, дорого и трудно для самостоятельной постройки.
Виды бань из простого бруса и оцилиндрованного бревна
Кирпич

Кирпич почти не даст экономии в средствах. Он прочен, долговечен, термо- и огнестоек, красив, имеет хорошую теплоизоляцию, особенно в пустотелой модификации. Но чем качественнее кирпич, тем дороже будет баня. Строительство удорожит и более массивный фундамент, которого требует кирпичная постройка.
Баня из красного кирпича, крыша — металлочерепица
Блоки

Бетонные блоки — это вспененный бетон различного состава. Они появились для того, чтобы улучшить термоизолирующие качества стен и облегчить их возведение. Были найдены специальные пенообразователи. При формовке блока в бетоне путём их добавки проходит химическая реакция — создаются пузырьки газа. Готовый блок гораздо легче сплошного блока того же состава. Поэтому они могут быть сделаны достаточно большими, что сильно ускоряет процесс строительства.
Разные блоки с разным наполнителем
От сорта блока зависит степень термоизоляции, вес и размер блока и конструкция необходимого фундамента.

Примеры блоков с разным наполнителем
Как сделать качественно
Нужно озаботиться тщательным выбором материала для строительство, обратив внимание на следующие моменты:
Производитель. Известные компании заботятся о своей репутации.
У них имеются все необходимые сертификаты, подтверждающие высокие эксплуатационное свойства продукции. Регулярно проводятся исследования, нацеленные на контроль качества;Стоимость. Если цена ниже, чем у конкурентов, то этот факт должен вызвать подозрения в качестве стройматериала.
Обычно скидку предоставляют по причине либо близости производства, либо оптового количества заказа, либо низкого сорта материала;Складские условия. Блоки должны храниться в сухом месте, в которое не может проникнуть влага;Упаковка. Должна быть не повреждена.
При осмотре блоков почерпнуть нужную информацию можно по следующим признакам.
По внутренней поверхности. Ее можно изучить, если разбить блок на части. Стройматериал изнутри должен быть такой же, как и снаружи.
Поры не должны соединяться, иначе блоки будут поглощать влагу;Размер пор. Чем они больше, тем прочность стройматериала меньше;Цвет. Поскольку цемент является преобладающим в составе блоков, то их поверхность должна быть окрашена в монотонный серый оттенок.
Слишком светлый стройматериал произведен с нарушением стандартов, так как в нем недостаточно цемента;Форма. Если при сложении вместе двух блоков между ними обнаруживаются зазоры, то при строительстве бани потребуется слишком много смеси или клея;Вес. Этот показатель также должен оставаться в пределах норм.
Для испытания блока на прочность нужно попытаться отломить часть его края, надавив рукой. Если от него отпал кусочек, это указывает на плохое качество материала.
Что такое пеноблок?
Пеноблок – это вид строительного материала, который изготавливается из ячеистого бетона. Нужно отметить его экологичность, так как он представляет смесь из обычного песка, воды, цемента и специальной пены. Последняя, застывая, образует воздушные ячейки. Такая структура превращает пеноблок в плавучий пористый камень. На фото наглядно показана эта особенность строения материала.
Использование пеноблоков может существенно сократить ваши затраты не только благодаря низкой стоимости самого материала, но и за счёт возможности строительства бани своими руками.
Рассмотрим все плюсы и минусы такого метода возведения бани.
Преимущества:
- Пеноблок имеет высокие морозостойкие и теплозащитные свойства. Постройка из этого материала во многом схожа с баней из древесины. За счёт “дышащего” материала создаётся особенный климат внутри помещения, что очень полезно при многих заболеваниях. Но при этом пеноблок огнеустойчив и это является его основным преимуществом перед пиломатериалом. Но всё это справедливо, при условии, что производитель использовал органический пенообразователь.
- Стандартный пенобетонный блок имеет крупные габариты по сравнению с кирпичом и маленький вес, что приводит к снижению трудоёмкости при транспортировке и ускорению строительства.
- Такой материал обычно в 2–3 раза дешевле древесины.
- Ячеистый бетон очень прочный.
- Для строительства вам не потребуются специальные знания. Вы сможете построить баню своими руками.
- Для резки пенобетона можно пользоваться обычной ножовкой или ножом.
- Баня, построенная из пеноблоков, не будет давать усадки и вы сможете пользоваться ей сразу после окончания всех работ.
Недостатки:
- Главный недостаток ячеистого бетона – боязнь влаги.
- Внутри пеноблоков может скапливаться конденсат. Если он замёрзнет, то это может привести к разрушению стен.
- Конструкция, выполненная из пеноблоков, не выдерживает больших нагрузок, поэтому такие постройки обычно ограничиваются двумя-тремя этажами.
- Без соответствующей обработки, при намокании внутри пеноблоков может размножаться вредная микрофлора и грибки.
- Каким бы высоким ни было качество производства пеноблоков, они менее экологичны, чем древесина.
Плюсов и минусов достаточно. Поэтому стоит хорошенько взвесить все за и против, прежде чем приниматься за работу. Если вы всё-таки решили использовать пеноблоки, то нужно составить проект строительства, примерную смету используемых материалов и произвести предварительные расчёты.
Разновидности бань из пеноблоков












Основные ошибки
Качественный проект, серьезный подход не исключают появление ошибок во время строительства или отделки
Чтобы минимизировать недочеты особое внимание уделяют следующим моментам:
Важно правильное планирование помещения. Для пары человек требуется от 10 кв.м.
Высота потолков 2-2,5 метра
Низкие потолки вызывают дискомфорт, а высокие – нерациональное использование теплоносителей.
Двери размещают с южной стороны, а окна должны выходить на запад и юг.
Дверные и оконные проемы должны быть минимальными. Например, для двери – 75х180 см.
Дачная баня должна строиться из облегченных материалов с энергосберегающими свойствами.
Блоки отлично зарекомендовали себя при возведении бань на дачном участке. Кладка производится на специальный раствор и не требует особых навыков строительства. Теплая и уютная баня будет радовать после тяжелого трудового дня и согреет в холодные вечера.
Баня от фундамента до крыши своими руками. Особенности постройки
Классические русские бани, это, конечно же, деревянные строения. Они имеют некоторые сходства с финской сауной. Для их сооружения рубят сруб и обтесывают изнутри. На территории России для возведения в качестве строительного материала используют сосну и некоторые другие породы древесины. Основным показателем при выборе является минимальное количество смолистых веществ, поскольку при нагревании и влажности такой материал начинает «потеть».


Сама технология возведения бревенчатой бани имеет свои особенности и отличия от строительства жилой избы. Прежде всего, это повышенные требования к характеристикам и качеству материала. Бревна должны быть выдержанными, прямыми и способными обеспечить качественное соединение.

Показателям герметичности уделяется особое внимание. Неоправданные потери тепла будут очень заметны, что снижает эффективность
Для максимальной сохранности температуры проводят конопачение стен с помощью мха или пакли.

Баня, построенная с бруса или бревен, имеет внушительный и привлекательный вид, но и цена такого сооружения по карману далеко не каждому. Более дешевым вариантом является использование каркасно-панельных технологий. Она требует небольшого количества материалов, да и на сам фундамент будут меньшие затраты, поскольку в качестве утеплителя используются минеральная вата или подобные аналоги. В таком случае нет необходимости возводить массивный фундамент из-за незначительного веса всей конструкции.

Преимуществом каркасных стен для бани является отсутствие осадки здания. Все же существуют и минусы использования каркасов – это появление влаги во время снежных метелей и дождей. Она образуется в процессе конденсации паров. Чтобы избежать подобных неприятностей, используют гидроизоляцию.

Правильный подход начинается из составления сметной документации. Она позволит отобразить цены на все виды работ и необходимые материалы. Кроме того, смета позволит провести корректировку и перераспределение бюджета.

После этого можно приступать к созданию банного проекта. Без навыков и умений в этой сфере Вы не сможете продумать все до мелочей. В силу этого лучше всего пригласить профессионального архитектора, который составит чертежи с основными требованиями и пожеланиями клиента.

Одним из главных этапов при сооружении бани является подбор материалов для фундамента. Данный элемент постройки непосредственно влияет на долговечность и крепость всей конструкции.
Баня из керамзитоблоков
Использование керамзитобетона для возведения банной постройки не является чем-то исключительным. Саму технологию суперлегкого бетона на основе керамзитового окатыша и пластичной цементно-песчаной матрицы используют в строительстве более полувека. Поэтому неудивительно, что возникла идея строительства бани из керамзитобетонных блоков своими руками. Правда, стяжка или утепление пола керамзитом с бетонной заливкой несколько отличается от полноценного блока, используемого в строительстве бани.
Что нужно знать о блоках для бани:
- Керамзитобетонный камень представляет собой литой прямоугольный блок размерами 39х19х18,5 см, с внутренними полостями или без них. Соответственно, вес камня колеблется в пределах 10–18 кг, в зависимости от количества пустот. По этому признаку блоки делят на стеновые и перегородочные;
- Наиболее важные для стен бани характеристики — теплопроводность и морозоустойчивость составляют 0.24-0,57 Вт/м2*С и F25-F100 соответственно. Это примерно уровень хорошего красного кирпича.
Важно! В отличие от всех существующих стеновых блоков, за исключением, может быть, арболита, керамзитобетон имеет специфическую ячеистую структуру, поэтому процесс усадки «свежих» стен бани протекает незаметно, с минимальными изменениями, что ее практически не учитывают для одно этажных зданий
Материал впитывает водяные пары, данный показатель на порядок меньше, чем у пеноблоков и газобетона, поэтому некоторые владельцы бани даже не тратятся на защитную внешнюю отделку стен. В этом случае утепление бани из керамзитобетонных блоков выполняют изнутри помещения.
Можно ли строить баню из керамзитобетонных блоков
Простая и доступная для кустарного использования технология изготовления керамзитоблока имеет и обратную сторону. Качество и безопасность керамзитобетонного камня зависят от характеристик наполнителя. По требованиям ГОСТа 6133-99 должен использоваться керамзит 10-12 мм из глины с большим содержанием плавикового шпата. За счет соединений фтора керамзитовая гранула получается с гладкой и прочной поверхностью.
Несмотря на высокую токсичность фтора, его соли находятся в застеклованном состоянии, поэтому никакой опасности, тем более под слоем бетона, не представляют. Если сырье прошло радиационный и экологический контроль, то из таких керамзитобетонных блоков можно строить любые жилые помещения.
Иногда в полукустарном производстве вместо дефицитного керамзита используется обожженная карьерная желтая глина. После сушки и обжига получаются небольшие кусочки, легкие и пористые, подобно пемзе. Так как стеклования гранул в процессе сушки не происходило, то содержащиеся примеси тяжелых металлов могут легко попасть в воду или на стены бани. Часто производители просто грешат добавкой доменного или печного шлака, у которого радиационный фон всегда выше естественного на 60-80%.
Совет! Если нет полной уверенности в безопасности купленных по дешевке для бани керамзитобетонных блоков, то будет нелишним проверить поверхность карьерным дозиметром.
Ну, а по правилам такой материал должен обязательно быть проверен на содержание солей свинца, хрома, сурьмы и ртути.
Баня из керамзитобетонных блоков: плюсы и минусы
Если рассматривать материал, только как средство для возведения стен бани, то можно отметить, что керамзитобетон намного лучше шлакоблока, пено- и газобетона.
Понятно, что у бани из керамзитоблоков есть свои плюсы и минусы. Первых намного больше, чем вторых.
К очевидным преимуществам постройки бани из керамзитобетона относят четыре пункта:
- Невысокая стоимость керамзитобетонных блоков. Цена на один стандартный камень колеблется в пределах 0,3-1,0 долл. за штуку;
- Керамзитобетон легкий в транспортировке и кладке. В среднем на то, чтобы сложить коробку бани из керамзитобетонных блоков по проекту 5х4 м или 6х4 м, потребуется максимум неделя времени;
- Превосходная огнестойкость. Коробка бани, даже будучи полностью охваченной пламенем, способна простоять без разрушения и деформации почти три часа.
Для постройки бани не требуется изготовление жесткого фундамента типа МЗЛФ или монолитной плиты.
Из недостатков можно отметить лишь склонность керамзита к поглощению воды. И хотя большая часть влаги вытягивается из наполнителя цементным зерном, могут остаться локальные «мокрые» участки, через которые мороз легко проникает сквозь стены бани.
Совет! Подтвердить качество материала косвенным способом можно с помощью угольника и линейки.
У товарного блока размеры всегда один в один, у полукустарного камня с геометрией не все в порядке. Поэтому есть повод усомниться в его качестве.
Это интересно: Форточки для теплицы — функции, разновидности и размеры
Обшивка комнаты отдыха и мансарды
Для обшивки использовал ту же осиновую вагонку, что и в парной. Только нашивал ее на рейки уже горизонтально. Никакой паро- и теплоизоляции не использовал.
Первым делом закрепил на газосиликатных стенах вертикальные рейки (из досок). К ним гвоздями прибил вагонку.

Вертикальные рейки крепятся на газосиликатных блоках с помощью саморезов по дереву

Обшивка стен комнаты отдыха осиновой вагонкой выполнялась горизонтально
По окончании работ покрыл вагонку антисептической пропиткой «Древнохрон дуб» (Polifarb) в 2 слоя. Второй слой наносил после высыхания первого, то есть на следующий день.
Как построить: этапы
Строительство бани из блочного материала начинается с правильного устройства фундамента.
Как правило, закладывается ленточный фундамент мелкого заглубления. После того как эти работы будут завершены, нужно выждать два дня до абсолютного затвердевания цемента.
Возведение стен производят на гидроизоляционный материал, уложенный на фундамент.
С помощью нивелира находят самый высокий угол постройки, от которого производится дальнейшее строительство стен из блоков.
Этот стройматериал обладает отличными теплоизоляционными свойствами, однако может происходить утечка тепла из бани через материалы для стыков, не обладающие такими качествами — так называемые мостики холода.
Укладка первого ряда считается наиболее важным этапом постройки бани из блоков.
Они скрепляются друг с другом с помощью простого раствора цемента с песком.
Кладка ряда завершается тщательным выравниванием поверхности и компенсацией всех изменений высоты основания здания, а также всевозможных неровностей.
Аккуратность при исполнении работ на этом этапе обеспечивает успех всего последующего хода строительства. Блоки необходимо устанавливать с помощью киянки с наконечником из резины.
Информация. Каждый шаг следует выверять, используя лазерный нивелир. Возведение стен можно облегчить, если протянуть леску промеж углов строения.
Второй ряд и следующие за ним укладываются с помощью специального клея. Он продается, как правило, в сухом виде. Этот клей растворяют в воде во время строительных работ. Изготовление клея занимает не больше 10 минут. Клеевую смесь следует накладывать слоем, толщина которого не должна превышать 0,5 см. Расход этого стройматериала производится в минимальных количествах.
Важно! Блоки при укладке устанавливаются на ребро. При этом швы стараются делать наименьшими, чтобы тепло через них не уходило.
Размешивают клей с водой в небольшой таре с помощью дрели. На нее устанавливают насадку в виде венчика.
Стыки благодаря использованию этого клея практически отсутствуют.
Поверхность стен бани из блочного материала не имеет «мостиков холода» при применении данной технологии.
Профессиональные строители рекомендуют укладывать блоки в 3 ряда.
Между ними нужно размещать армирующий слой, представляющий собой сетку из стали с мелкими ячейками. Эта мера обусловлена необходимостью дополнительного укрепления строящегося объекта.
До того, как построить баню из блоков, правильно будет заранее продумать, где будут находиться окна и двери. В этом вопросе можно руководствоваться собственными соображениями. Для перекрытия таких проемов в стенах из блоков нужно залить бетоном опалубку. Допустимо использовать также наборные детали промышленного изготовления.
По завершении возведения стен бани рекомендуется сделать перерыв. Через 4 дня можно приступать к установке кровли.
Важно! Клей быстро отвердевает. Необходимо успеть наложить его по всему ребру блока, поверх установить другой блок и тут же подогнать с помощью киянки.
Отделка бани из блоков
Чтобы строение из блоков прослужило достаточно долго, необходимо использовать для его внутренней и внешней отделки качественные и правильно подобранные материалы. В наше время производители предлагают массу вариантов для внешней облицовки здания.

В любом случае, когда строим баню из блоков своими руками, нужно дополнительно ее утеплять и обрабатывать влаго- и пароизоляционными материалами. Только в этом случае можно получить действительно качественное строение, которое прослужит очень долго и не потребует частых ремонтов.
Традиционная баня — небольшая постройка, возведенная с использованием натуральных экологичных материалов.
В ней должно быть тепло и уютно. С древних времен баню строили из дерева. И именно строение из дерева приходит на ум в первую очередь при упоминании этого излюбленного нашим народом места досуга.
Но для многих своя баня может навсегда остаться предметом мечты, если рассматривать в качестве материала для ее сооружения только древесину. Натуральные строительные материалы сейчас достаточно дороги.

Выручить в этой ситуации может строительство бани из блоков. По стоимости они обойдутся гораздо дешевле, а по качеству станут достойной заменой древесине.
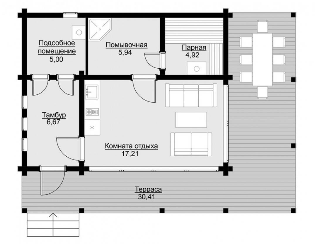
Планировка бань из блоков.
Рассмотрим несколько вариантов бань из блоков:
Самый распространённый план бани 6Х3
Данный тип бани можно спокойно использовать как пристройку к гаражу, так как окна располагаются только на стороне входа.
Данная планировка включает в себя огромную комнату отдыха, среднюю мойку и разумеется парилку. Эта баня рассчитана для большой семьи, компании, благодаря своим размерам и комнате отдыха.
Для маленьких участков можем посоветовать баню 4Х3
В данной планировке комната отдыха занимает половину всей площади бани, а во второй половине располагается душевая и парилка.
Баня из блоков имеет размер 5Х4
В отличие от вышеперечисленных бань данная уже имеет большой предбанник и более хорошее освещение из-за такого количества окон.
Данная баня из блоков 4Х5.5
Плюсы этой бани в том, что она имеет большое крыльцо, предбанники, и не менее большую парную, душевую приемлемых размеров.
Баня из блоков 4Х6
На данной терраске можно отдыхать не только одному, но и с компанией знакомых или друзей. На данной терраске можно разместить почти всё что угодно, хоть бильярдный или теннисный стол.
Последовательность работ
Закладка основания
Когда мы выбрали тип блоков, необходимо позаботиться о подготовке надежного основания. Большинство материалов, применяемых для возведения бани, отличаются высокой пористостью и малой массой, потому особых нагрузок фундамент испытывать не должен.
И все же без качественной опоры бане не обойтись:
- Для бань, имеющих относительно небольшие размеры (до 6-7 м по длинной стороне), чаще всего закладывают столбчатые или ленточные фундаменты.
- Столбчатая конструкция предусматривает установку бетонных опор под углами строения и в местах соединения стен. Также возможна поддержка столбами длинных прямых участков.

Столбчатый фундамент
- Для обеспечения большей прочности столбы часто соединяют армированным ростверком.
- Ленточная конструкция представляет собой траншею глубиной до 50 см и шириной в 30-40 см, залитую армированным бетоном. Траншея проходит под всеми несущими элементами и обеспечивает распределение нагрузки на грунт.
- На сложных субстратах также применяются свайные опоры.
Вне зависимости от типа фундамента, его необходимо приподнимать над уровнем земли не менее чем на 40-50 см. Делается это для того, чтобы защитишь гигроскопичные строительные блоки от проникновения почвенной влаги.

Ленточное основание с проемами для труб
С этой же целью необходимо обеспечить эффективную гидроизоляцию: когда мы строим баню из блоков, то обязательно прокладываем между бетонным основанием и первым рядом кладки два слоя рубероида.
Стены и кровля
Далее строительство бани из блоков идет по той же схеме, что и возведение любой другой конструкции:
- Кладку стен проводим по всем правилам, обязательно контролируя качество работы с помощью уровня и отвеса.
- Через каждые три-четыре ряда усиливаем конструкцию сварной металлической сеткой или арматурными прутьями.
- Для оформления оконных проемов используем либо деревянные обсады, либо специальные длинномерные панели (при необходимости их можно отлить своими руками).
- В верхний ряд блоков закладываем металлические шпильки диаметром 10-12 мм. К ним крепим деревянный брус-мауэрлат, выступающий в качестве опоры для кровли.

Стройка бани из блоков: кладем стены
Далее инструкция предполагает монтаж стропильной системы из бруса и досок толщиной не менее 20 мм. Кровля в бане может быть как двускатной, так и односкатной: первая – дороже, но удобнее в эксплуатации, вторая – требует периодической уборки снега в зимний период и нуждается в дополнительной гидроизоляции.
В качестве кровельного материала можно использовать металлочерепицу, еврошифер и т.д.

Монтаж кровли
Также на этом этапе работы подводим коммуникации: свет, воду, канализацию и т.д. Для прокладки кабелей и труб необходимо предусмотреть проемы в стеновом ограждении.
Отделка помещения
Если мы хотим построить баню из блоков и сделать ее максимально теплой, то помимо выбора материала с наибольшими показателями энергосбережения обеспечить эффективную теплоизоляцию.
Как правило, отвечает за это внутренняя отделка:
Схема внутреннего утепления
- Потолок бани необходимо утеплять как со стороны чердака, так и со стороны помещения. Это позволит минимизировать потери тепла, ведь горячий воздух постоянно поднимается вверх. Также стоит позаботиться о внутреннем утеплении скатов кровли – как минимум, установить панели из минеральной ваты и накрыть их ветрозащитной мембраной не повредит.
- Пол лучше делать бетонным, с утеплением керамзитом, пеностеклом или полистирольными плитами. Дощатый настил должен обеспечивать эффективный дренаж.
- На стены набиваем обрешетку из деревянного бруса. Между сегментами обрешетки закладываем панели базальтовой ваты или аналогичного термостойкого утеплителя.
- Сверху накрываем теплоизоляционный слой фольгированным материалом. Фольга выступает и в качестве отражателя для инфракрасного излучения, и как пароизоляция.
- Поверх фольги устанавливаем контробрешетку из тонких реек, к которой прибиваем вагонку для бани.
Наружное утепление проводится в том случае, если внешние стены мы возводили в один блок. Для теплоизоляции с внешней стороны чаще всего применяются пенобетонные или газобетонные блоки.

Вариант наружного утепления
Монтаж кровли
В каждой инструкции, как сделать поэтапно баню своими руками из пеноблоков, заключительным этапом будет установка крыши. К монтажу «шапки» здания нужно приступать только после высыхания фиксирующего раствора стен.
- Для крыши с двумя скатам монтируют стропила с двух сторон, которые упираются в стяжку по периметру. По центру конструкция закрепляется основным несущим брусом.
- Далее формируют решетку – основу для будущего настила. Под шифер кладут один слой, под рубероид – два.
- Заключительный этап – монтаж кровельного покрытия. В некоторых случаях на рубероид выкладывается черепица.

Фото с сайта Ruslanbelov.ru
Важным этапом является укладка утеплителя для верхней части бани. При строительстве дымохода лучше обратиться к профессиональному печнику, так как нарушения в системе отвода продуктов горения могут привести к пожарам и удушью посетителей.
Возводим стены бани
После укладки гидроизоляции на фундамент бани начинается процесс воздвижения стен бани из пеноблоков. Большой популярностью при строительстве бань пользуется пеноблок марки М25 и плотностью Д700. Его размеры считаются самыми оптимальным для строительных работ – 10х30х60 см.
Итак, с помощью строительного уровня вычисляется самый высокий угол постройки и от него начинается возведение пеноблочных стен.
Технология укладки стены из пеноблоков своими руками.
Пеноблоки нужно укладывать на ребок, а швы между блоками делать как можно тоньше – это необходимо для исключения через них потери тепла. Ведь, несмотря на то, что пеноблок – один из самых теплых материалов, да и швы достаточно большой толщины, ценное тепло парилки все равно может теряться по так называемому «мостику холода».
Своими руками возводится баня из пеноблоков довольно легко, но все же процесс требует определенных знаний и навыков. Так, самый ответственный момент – кладка первого ряда. В нем скрепление блоков производится при помощи обыкновенного цементно-песчаного раствора. После окончания выкладки ряда поверхность обязательно нужно тщательно выровнять и компенсировать все перепады высоты фундамента и выступы. И от этого этапа зависит, насколько легкой будет вся дальнейшая работа. Поэтому лазерным уровнем пользоваться нужно постоянно, а блоки – сажать на место с помощью резинового молотка. Чтобы строить было удобно, лучше натянуть шнур между углами будущей бани.
А вот кладку второго ряда и последующих сажать уже нужно на специальный клей. Он продается в мешках как сухая смесь и разводится простой водой прямо на строительном объекте. Готовится этот клей всего 5-10 минут. Расход же этого клея – минимален, его толщина при кладке не превышает 0,5 сантиметра.
Сегодня баня из пеноблоков, построенная с помощью этого клея, обладает плотными стенами почти без стыков и «мостиков перехода», которые обычно есть между конструктивным элементами.
Современные специалисты рекомендуют пеноблоки возводить по три ряда, прокладывая между ними армирующий слой из металлической мелкоячеистой сетки. Это необходимо для упрочнения всей конструкции. А перекрытия дверных и оконных проемов в пеноблоках несложно делать, если заливать бетон в опалубку или пользоваться уже готовыми доборными элементами.
Для кладки первого ряда необходимо брать пеноблоки наибольшей плотности, соединяя их при помощи цементной смеси. Для последующих рядов понадобятся специализированные клеевые смеси. Клей готовят из сухих смесей. Для этого понадобятся небольшая емкость и дрель с венчиком.
Не нужно ждать пока клей окончательно застынет. Его наносят на весь периметр блока, сверху вкладываются пеноблоки и выравниваются при помощи молотка с резиновым наконечником.
При этом важно соблюдение горизонтального и вертикального уровня. Это можно проверить строительным или лазерным уровнем
Также предлагаем вам посмотреть видео о возведении строений по этой технологии от одной из ведущих строительных фирм:





































